Soetebeer´s – Finanz- & Immobilienkontor
Immobilienverkauf mit Erfolg - Haus verkaufen in Lüneburg & Umgebung

Wohnen und Arbeiten, wo Ruhe und Lebensqualität zuhause sind!

  • Objekt-Nr.4942012
  • Zimmer7
  • Wohnfläche212,6 m²
  • Grundstücksfläche997,0 m²
  • Stellplätze2
  • Kaufpreis379 000,00 €

Beschreibung der Ausstattung

Bungalow verklinkert Baujahr 1982/1990
Gesamtfläche ca. 212 m² (derzeit 151 m² Wohnfläche), eigener Praxisbereich (61 m² Gewerbefläche)
weitere Nutzfläche ca. 30 m² (Hobbyräumlichkeiten in ausgebauter Garage)
Flachdach 2010 erneuert mit leichtem Gefälle
Bad neu (2024)
Einbauküche
fast 30 m² große überdachte Terrasse aus 2024 (mit Beschattung)
Brötje-Gasheizung (2016)
Holzparkett und Fußbodenheizung im Wohnbereich
Holztüren massiv
Kunststofffenster doppelt verglast (Austausch 2013 bis heute)
Rollläden
Doppelcarport (2020)
2 Gartenhäuser
Regenauffangstation

Lage

Die Immobilie befindet sich in einer äußerst begehrten Lage am Rande einer verkehrsberuhigten Zone im beschaulichen Dahlenburg. Diese ruhige Wohnlage bietet Ihnen das Beste aus zwei Welten: die angenehme Stille eines verkehrsarmen Wohngebiets bei gleichzeitig guter Erreichbarkeit aller wichtigen Einrichtungen des täglichen Lebens.

Dahlenburg selbst überzeugt mit seinem charmanten Kleinstadtflair im Landkreis Lüneburg. Einkaufsmöglichkeiten, Schulen, Kindergärten sowie Arztpraxen sind bequem zu Fuß oder mit dem Fahrrad erreichbar und sorgen für einen komfortablen Alltag. Die umgebende Natur lädt zu ausgedehnten Spaziergängen, Radtouren und Freizeitaktivitäten in der Heide ein.

Für Pendler ist die Lage ebenfalls ideal: Die Nähe zur Hansestadt Lüneburg sowie die gute Anbindung an die überregionalen Verkehrswege ermöglichen eine entspannte Anreise in die umliegenden Städte und Wirtschaftszentren.

Das ruhige und familienfreundliche Wohnumfeld macht diese Lage besonders attraktiv für Familien, Paare und alle, die ein harmonisches Wohnklima fernab von Lärm und Hektik schätzen.

Objektbeschreibung

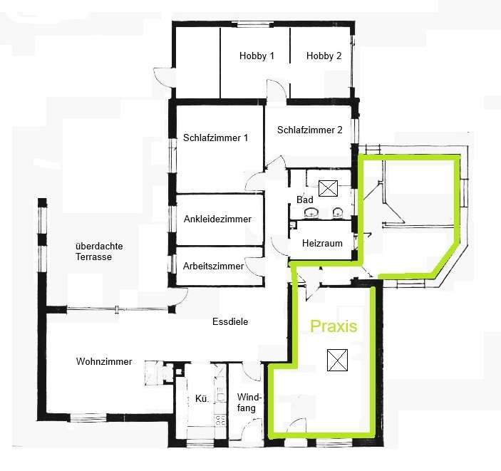
In absolut ruhiger Wohnlage am Rand einer verkehrsberuhigten Zone befindet sich dieser top-gepflegte Bungalow. 1982 in massiver Bauweise errichtet und 1990 um einen Anbau erweitert wurde er in den letzten Jahren umfangreich renoviert bzw. saniert und bietet aktuell eine flexibel nutzbare Fläche von ca. 212 m² auf einem Eigentumsgrundstück von 997 m². Zu der derzeitigen großzügigen Wohnfläche von ca. 151 m² kommt eine gewerbliche Fläche von ca. 61 m² (ehemaliges Friseurgeschäft) - ideal für eine kleine Praxis oder ein Büro.

Zum Wohnbereich:
über den Windfang mit viel Raum für die Garderobe gelangen Sie in die gemütliche Essdiele mit Zugang zur großen Terrasse. Komplett überdacht und zu drei Seiten geschützt wird diese mit fast 30 m² Fläche zu fast jeder Jahreszeit zum echten Wohn-/Esszimmer im Grünen, ein echtes Highlight zum Leben für Sie und Ihre Lieben! Eine Beschattungsmöglichkeit liefert auch im Sommer Schutz. Das großzügige, helle Wohnzimmer mit Fenstern zu zwei Seiten hat als zentralen Blickpunkt einen großen, gemauerten Kamin, der einen Großteil des Hauses in der kühleren Jahreszeit mit gemütlicher Wärme versorgt. Neben dem Essbereich liegt auch die geschmackvolle Küche mit vielen schönen Details.
Über einen Privatflur erreichen Sie die 3,5 Schlafzimmer und das top-sanierte Bad (2024) mit großer, quasi ebenerdiger Dusche und einem großen Oberlicht, perfekt für die Beleuchtung des Raums. Hochwertige Holzbauteile setzen hier einen warmen Kontrapunkt zu den großen weißen Wandfliesen.
Die Zimmer sind flexibel nutzbar, derzeit werden zwei als Schlafräume genutzt, der große davon mit einem ensuite Ankleidezimmer (könnte problemlos wieder zu einem eigenständigen Schlafzimmer umgebaut werden) sowie ein Arbeitszimmer. An das zweite Schlafzimmer schließt sich die zum Hobbybereich umgebaute Garage an (nicht in der Wohnfläche enthalten).
Im gesamten Wohnbereich sorgt eine Fußbodenheizung für angenehmes Wohnklima. Echtholzparkett, Echtholztüren und viele geschmackvolle und gut durchdachte Details wie eine integrierte Deckenbeleuchtung, Fachwerkraumteiler und andere unterstreichen die wohnliche Atmosphäre dieser hochwertigen Immobilie.
Über den Flur gelangen Sie über einen Verbindungsgang auch in den abgeschlossenen gewerblichen Bereich (ehemals Friseurgeschäft). Der helle (großes Fenster und ebenfalls Oberlicht) Praxisraum mit eigenem Außenzugang wird sinnvoll ergänzt um zwei weitere Räume sowie ein eigenes WC. Der Heizungsraum mit der Brötje-Gasheizung von 2016 ist sowohl vom Wohnbereich als auch vom Gewerbebereich aus zugänglich.
Das Flachdach wurde 2010 mit entsprechender Dämmung und einem leichten Gefälle erneuert, die Fenster (Kunststoff doppelt verglast) seit 2013 kontinuierlich ausgetauscht. Rollläden tragen zur guten Energiebilanz des Objektes bei.

Im Garten finden sich viele schöne Details, unter anderem ein Springbrunnen mit Granitsäulen, Hochbeete für Ihre Gemüseversorgung, 2 schöne rote Holzgartenhäuser als Stauraum für Garten- und/oder Spielgeräte und eine praktische Regenauffangstation, perfekt für die Gartenbewässerung.
Das Doppelcarport (2020) auf dem Grundstück schützt Ihren Fuhrpark vor Wind und Wetter.

Sonstige Angaben

Wir haben unseren Auftraggebern Diskretion zugesagt, es handelt sich bei den Informationen zu den Immobilien um sensible Daten, haben Sie bitte Verständnis, dass wir Ihre Anfragen nur unter vollständiger Nennung Ihres Namens, der Anschrift und der Telefonnummer bearbeiten können! Vielen Dank!

PLZ21368
OrtDahlenburg
NutzungsartWohnen
Baujahr1982
Wohnfläche212,6 m²
Etagen1
Zimmer7
Schlafzimmer3
Badezimmer1
Allgemein
  • Gehoben
  • Kamin
  • Gartenmitbenutzung
  • Abstellraum
  • Gäste WC
  • Fußbodenheizung
Heizungsart
  • Fußbodenheizung
Befeuerung
  • Gas
Küche
  • Einbauküche
  • Array
  • Array
EnergieausweisartVERBRAUCH
gültig bis01.04.2036
PrimärenergieträgerGas
Jahrgang2014
*) Pflichtfelder